Buenas! soy nuevo en el foro y la verdad es que necesito ayuda urgente,
Estoy llevando el curso de instalaciones sanitarias en el ciclo de verano en la universidad y como sabrán el tiempo es muy reducido y, sumado a esto, la mayoría de mis compañeros tienen experiencia con este tipo de planos por lo que me es muy difícil seguirles el ritmo.
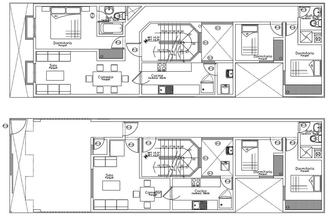
Resulta que el profesor nos mandó el plano de una vivienda y nos ha pedido que le coloquemos el sistema de desagüe. Cuando nos hizo un ejemplo me pareció muy fácil ya que sólo había graficado un baño, sin embargo en el plano que nos envió como verán hay dos baños muy distanciados uno del otro y además una cocina y lavandería, por lo que no tengo la menor idea de dónde debería colocar la tubería montante. Agradecería que me den una idea de dónde podría ir esta ya que así al menos tendría un punto de partida.
Muchas gracias desde ya, adjunto una captura del plano.
BIMSOFTWARE.MX GStarCAD - Software CAD 2d/3d
Canales de Ingeniería Civil en:
Whatsapp / Telegram
Whatsapp / Telegram
Dónde ubicar montante de desague?
-
- Información
-
¿Quién está conectado?
Usuarios navegando por este Foro: No hay usuarios registrados visitando el Foro y 8 invitados

